发布日期:2020-11-25 15:26:29 访问次数:158
型号预览
订货举例说明 订货:
交付:执行器、附件以独立包装形式供货
附件说明
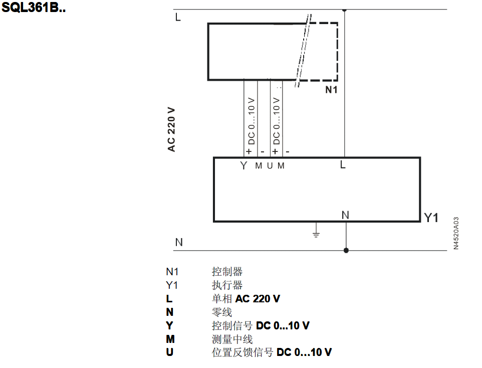
接线方式
上一产品:SUA21/1执行器
下一产品:SKD执行器